Features
- Face Fit only on to existing door frame.
- Can be fitted inside or outside.
- The mesh screen is operated using a full height handle bar that is pulled across until it is held by magnets in the side tracks. Handle bar can be operated from both sides (inside and outside).
- Cartridge and side tracks are white powder coated aluminium. Brush pile in side tracks and along handle bar to create seal.
- The black insect mesh retracts smoothly into the cartridge when not in use.
- For wider doors 2 roller screens can be fitted to meet in the middle.
- Made to measure, ready for you to install.
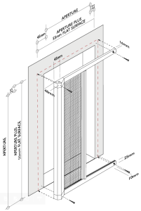
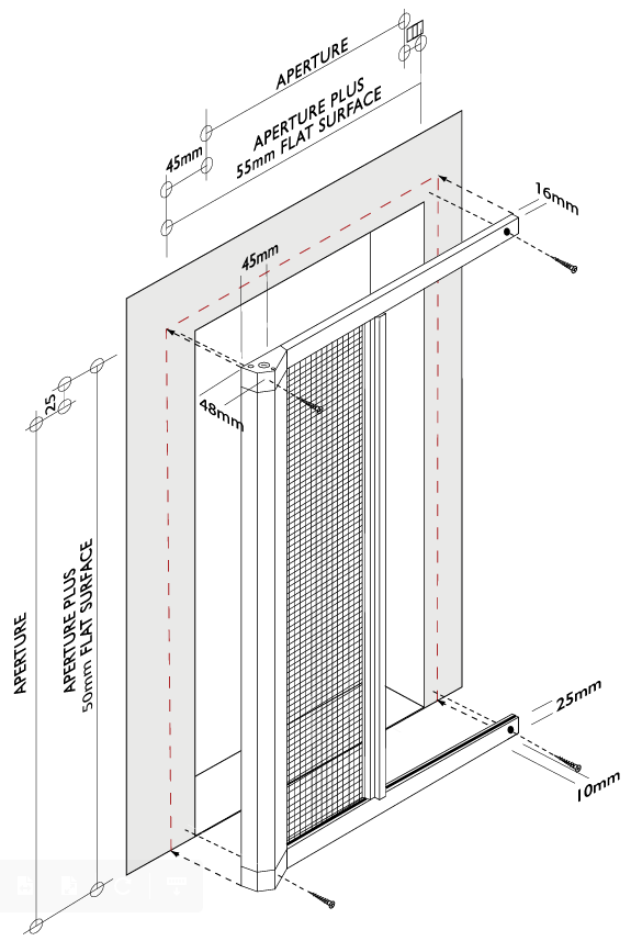
Measuring Single Door for Face Fitting
The height of the cartridge is the critical measurement – it cannot be changed after it has been made. The side tracks need to be face fitted. It may be necessary to raise the threshold or fit a batten to accommodate the bottom track.
In order to operate the handle from both sides the handle bar should overlap the door aperture by 10mm.
Measure the width of the aperture plus any bevelled edges and add 45mm for the cartridge and 10mm for an overlap to allow the handle bar to make a seal (55mm in total).
Measure the height of the aperture plus any bevelled edges and add 25mm to the top and bottom (50mm total for the side tracks). More can be added if space allows.
We manufacture to the sizes given to us, subject to +/- 2mm manufacturing tolerance. Please ensure you have read our measuring instructions carefully and made any deductions required.
Width: Aperture (and bevelled edges) + 55mm of flat surface.
Height: Aperture (and bevelled edges) + 50mm of flat surface
Measuring Double Doors for Pair of Roller Screens
A pair of Roller Screens will meet in the middle and be held in place by the magnets in each set of side tracks. Brush pile in each handle bar creates a seal between the screens.
We manufacture to the sizes given to us, subject to +/- 2mm manufacturing tolerance. Please ensure you have read our measuring instructions carefully and made any deductions required.
Width: Aperture (and bevelled edges) + 90mm of flat surface.
Height: Aperture (and bevelled edges) + 50mm of flat surface.






